

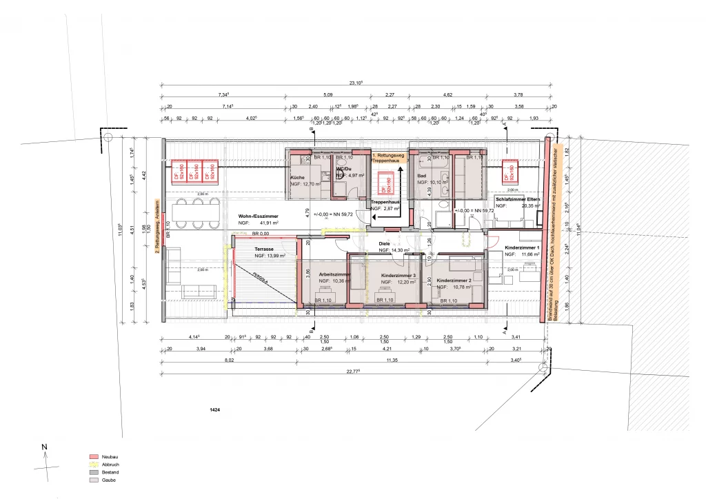
großzügiger Dachausbau auf Mietwohnungsbau aus den 60er Jahren
Der klasssische Mietwohnungsbau aus den 60 Jahren erhält im unausgebauten Dachbereich eine großzügige neue Familienwohnung, die sich um einen zentralen Dacheinschnitt mit Dachterrasse gruppiert.


